局所排気装置設置時の届出は義務?必要な書類をわかりやすく解説
「局所排気装置の導入が決まったけれど、役所に届出が必要なの?」とお困りの人も多いでしょう。
塗装やアーク溶接を行う現場では局所排気装置の設置が義務付けられており、設置する際は役所への届出が必要です。
本記事では局所排気装置の届出に必要となる書類についてわかりやすく解説しています。局所排気装置の導入を検討されている方は必見です。
目次
そもそも局所排気装置とは?
局所排気装置とは、人体に有害物質を使用する作業がある現場で、作業者の安全を守るために設置される装置です。
有害物質には、塗料に含まれる有機溶剤、アーク溶接時に発生する溶接ヒューム、その他ガスや粉じんなどがあります。
局所排気装置の役割は、これらの物質を発生源近くで捕集して、作業空間から排除することです。
有機溶剤を取り扱う塗装作業場や、溶接ヒュームが発生する金属加工の現場などの屋内の作業場では、労働安全衛生法や関連法規に基づき、局所排気装置の設置が義務付けられています。
- 囲い式:発生源を覆うように設置する
- 外付け式:発生源の近くにフードを設置する
- プッシュプル型:発生源を給気用フードと排気用フードで挟んで設置する
局所排気装置には上記のようにいくつかの種類があります。ミドリ商会ではお客様のニーズに合わせて最適な局所排気装置をご提案可能です。
詳しくは以下の商品ページをご覧ください。
商品ページ:『塗装ブース(局所排気装置)』
商品ページ:『プッシュプル型換気装置』
局所排気装置の届出は事業者の義務
労働安全衛生法第88条および第90条に基づき、局所排気装置の「設置」「移転」「変更」「廃止」を行う際には、所轄の労働基準監督署長への届出が義務付けられています。
作業環境の安全性を確保し、労働者の健康障害を未然に防止するための重要な手続きです。
届出を怠ると、法律違反となり罰則の対象となる可能性もあるため、必ず所定の手続きを行いましょう。
局所排気装置の届出書類一覧
局所排気装置の届出書類には以下のとおり数多くあります。
- 機械等設備・移転・変更届
- 局所排気装置摘要書
- 局所排気装置計算書
- 排気系統図
- 排気ファンの製品図面
- 排気ファンの予想性能曲線図(選定書)
- 局所排気装置の製品図面
- 局所排気装置予定場所(レイアウト)
- 建物配置図(周辺図)
それぞれの書類について以下で確認しておきましょう。
専門的な内容を多く含むため、専門業者やメーカーと協力して作成・提出するのが一般的です。
機械等設備・移転・変更届

労働安全衛生法に基づいて、局所排気装置などの機械設備を「設置」「移転」「変更」する際に、所轄の労働基準監督署長に提出する書類です。
事業場の名称や所在地、事業の種類、機械等の種類、設置・移転・変更の年月日などを記載します。
局所排気装置摘要書

局所排気装置の具体的な仕様や性能を詳細に記載する書類です。
フードの形式、ダクトの口径や材質、排風機の能力(風量、静圧)、フィルターの種類、処理風量、処理すべき有害物質の種類と濃度、排気口の高さと位置などが含まれます。
この書類は、設置される局所排気装置が有害物質を処理する際に、適切な能力を持っているかを確認するために必要です。
局所排気装置計算書

局所排気装置の設計が適切に行われていることを証明するための計算書類です。
フードの捕集効率、ダクト内の風速、圧力損失の計算、排風機の選定根拠などが含まれます。
これらの計算は、局所排気装置が法令で定められた基準を満たし、有害物質を排気できることを裏付けるために必要です。
専門的な知識が求められるため、通常はメーカーや専門業者が作成します。
排気系統図

局所排気装置の全体的な配置と排気経路を簡略化した図面です。
フードからダクト、フィルター、排風機、排気口までの流れが示されます。
この図面によって、排気システムの全体像と各機器の接続が見える化されるため、装置が適切に設計・配置されているかを確認するのに役立ちます。
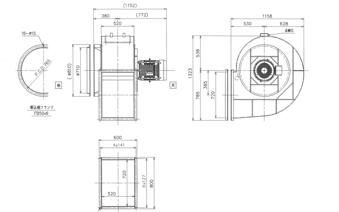
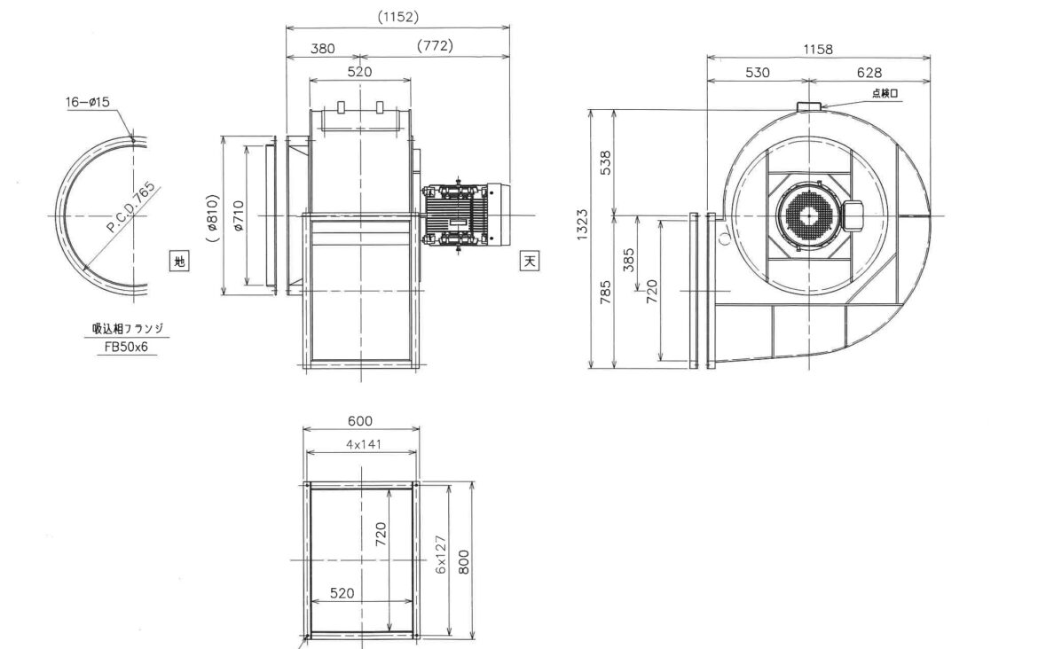
排気ファンの製品図面

排気ファンの具体的な寸法、構造、取り付け方法などが記載された図面です。
ファンの種類、モーターの出力、回転数、外形寸法などが示されます。
装置全体の設計において、ファンの選定と設置が適切であるかを評価するために提出します。
排気ファンの予想性能曲線図(選定書)

排気ファンの性能をグラフで示したもので、風量と静圧の関係、効率などが示されています。
曲線図により、選定されたファンがシステム全体の圧力損失に対して必要な風量を確保できる能力があるかを確認できます。
選定書は性能曲線に基づいてファンを選定した根拠を示す書類です。
局所排気装置の製品図面

局所排気装置全体の構造や各部の寸法、主要な構成部品の配置などが詳細に示された図面です。
フード、ダクト、フィルター、排風機など、装置を構成するものが図示され、設置場所への適合性やメンテナンスのしやすさなどを確認するのに用いられます。
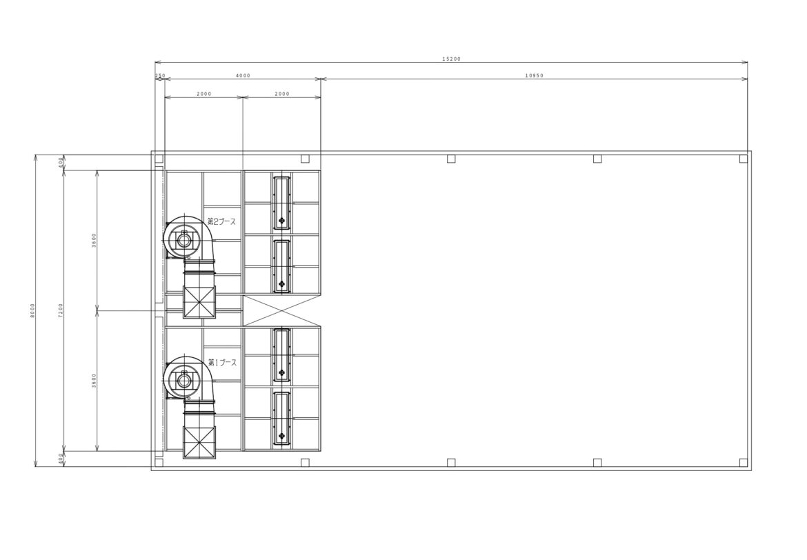
局所排気装置予定場所(レイアウト)

局所排気装置が設置される作業場内の具体的な配置を示した図面です。
作業場の平面図上に、装置の設置位置、作業台、有害物質の発生源、作業者の動線などが示されています。
局所排気装置が作業環境に対して適切に配置され、効果的な排気が行えるかを確認します。
建物配置図(周辺図)
建物全体の配置とその周辺環境を示す図面です。
局所排気装置の排気口の位置と、隣接する建物、道路、敷地境界線などが記載されます。
排気された有害物質が周辺環境に影響を与えないか、排気口の高さや方向が適切であるかなどを確認するために提出します。
局所排気装置は届出だけではなく「点検」も義務
労働安全衛生法では、設置された局所排気装置が正常に機能しており、作業環境の安全が維持されていることを確認するために、以下の点検が義務付けられています。
- 1ヶ月に1回の簡易点検
- 1年に1回の自主検査
それぞれの内容を掘り下げて確認しましょう。
1ヶ月に1回の簡易点検
局所排気装置を設置する事業者は、1ヶ月以内ごとに1回、以下の項目を確認しましょう。
- フード、ダクト、フィルター、排風機などの外観に異常がないか
- 装置の吸い込み能力が低下していないか
- 騒音や振動などの異常がないか
- 各部の固定に緩みがないか
簡易点検は、装置の異常を早期に発見して大きなトラブルを未然に防ぐための日常的な確認作業です。
目視や簡単な動作確認で実施できる内容が中心となります。
1年に1回の自主検査
局所排気装置を設置する事業者は1年以内ごとに1回、専門的な知識と技術を有する者による自主検査を実施する義務があります。
月1回の簡易点検よりも以下項目の詳細な検査を行い、装置の総合的な性能評価を行います。
- 各部の劣化状況の確認
- フード、ダクト、排風機などの風量測定
- フィルターの目詰まり状況の確認
- 集じん装置の性能確認
- 電気系統の点検
自主検査の結果は記録して3年間保存する義務があります。
この自主検査は、装置が設計通りの性能を発揮しているか、安全基準を満たしているかを客観的に確認するために重要です。
専門的な知識や測定機器が必要となるため、専門業者に依頼しましょう。
ミドリ商会では年次点検の代行を行っております。詳しくは以下の商品ページをご覧ください。
商品ページ:『局所排気装置 年次点検』
局所排気装置でお困りならミドリ商会までお問い合わせください
局所排気装置は作業者の健康と作業場の安全を守るために必須の設備です。
塗装やアーク溶接を行う現場では、設置が義務付けられており、定期点検によって能力が問題ないかどうか確認する必要があります。
もし局所排気装置のことでお困りであればミドリ商会までお問い合わせください。
最適な局所排気装置のご提案から届出書類の作成、月次点検や年次検査までトータルでサポートいたします。
